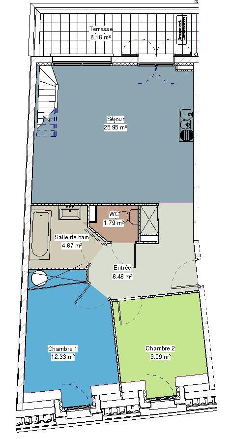
Appartement de Type 3 de 66,50 m2 situé au troisième étage avec une terrasse donnant sur le jardin et une mezzanine :
Situation de l'appartement dans la résidence

Plan de l'appartement



Plans des niveaux détaillés (téléchargement)
- Plan du quatrième étage - Mezzanine (fichier .pdf)
Plan commercial (téléchargement)
- Plan du Type 3 (Lot 6) (fichier au format .pdf)
.